THE INDIGENOUS WOMAN HOUSE
Category: Social
Year: 2013
Location: Cuetzalan, Puebla
Description:
The indigenous woman house is located in Puebla’s northern mountain range, in the county of Tlaola.
The project was developed for assistance and for the prevention of gender violence.
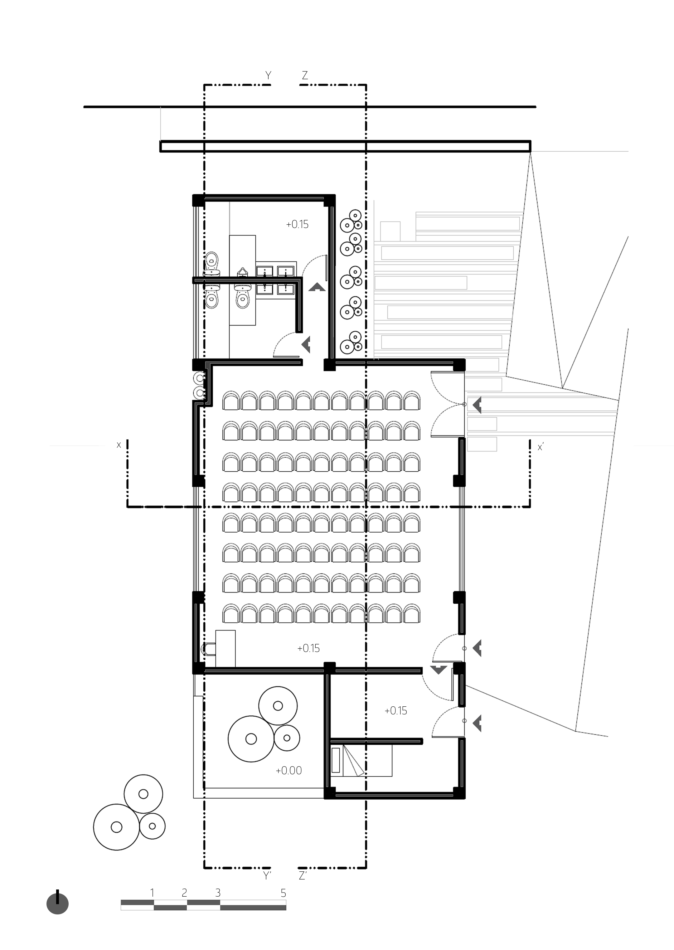
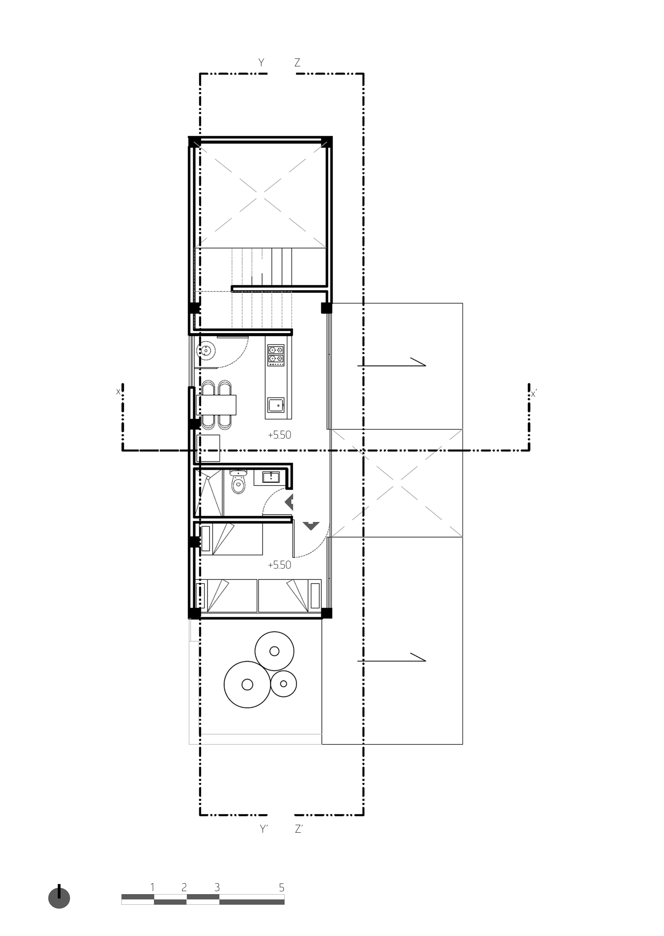
The building responds to the basic functions of service and workshop facilitation.
© Lopez/Jaimes design studio
© Lopez/Jaimes design studio
An essential factor for the development of the project is that the forms and the materials integrate with the context, so that the community can make use of the facilities.
The project developed in stages in order to achieve a better use of space, placing a multiple-use classroom in the lower floor, and placing the service area in the upper part.
© Lopez/Jaimes design studio
© Lopez/Jaimes design studio
The woman’s house is a project carried out for connecting government programs and the community, in particular, to follow up and support the prevention of gender violence.
.
© Lopez/Jaimes design studio
© Lopez/Jaimes design studio
