Ritmo Formentera – After spending the day at the heavenly beaches of Formentera, Ritmo is thought as the place to enjoy the stunning and relaxed sunset of the island and start the fun of an epic mediterranean night. The spot is set in the nerve center of the island and has the main feature of being an exempt building, having a magnificent presence from different views. The project was focused in deleting all palimpsests and integrate the building in the mediterranean surroundings by using natural materials such as the wooden pergola upstairs, the ropes that complete the volume on the ground floor terrace or the use of terracotta and wicker in the interiors.
Architizer chatted with Gabi Ladaria, creative director at Destudio Arquitectura to learn more about the project.
Architizer: What inspired the initial concept for your design?
Gabi Ladaria: The traditional Mediterranean architecture. The customers of Ritmo are people who use to spend a few days in the islands and they want to feel this fresh vacation vibes all over around. So we wanted them to feel like they are in a traditional home, in the sense of comfort, but also in a place where they have some fun at night, spending hours here. Then, the use of natural materials was mandatory for us. And also present them in ways (wicker ceiling) that make you feel you’re in a smart and funny place
© Destudio
© Destudio
What do you believe is the most unique or ‘standout’ component of the project?
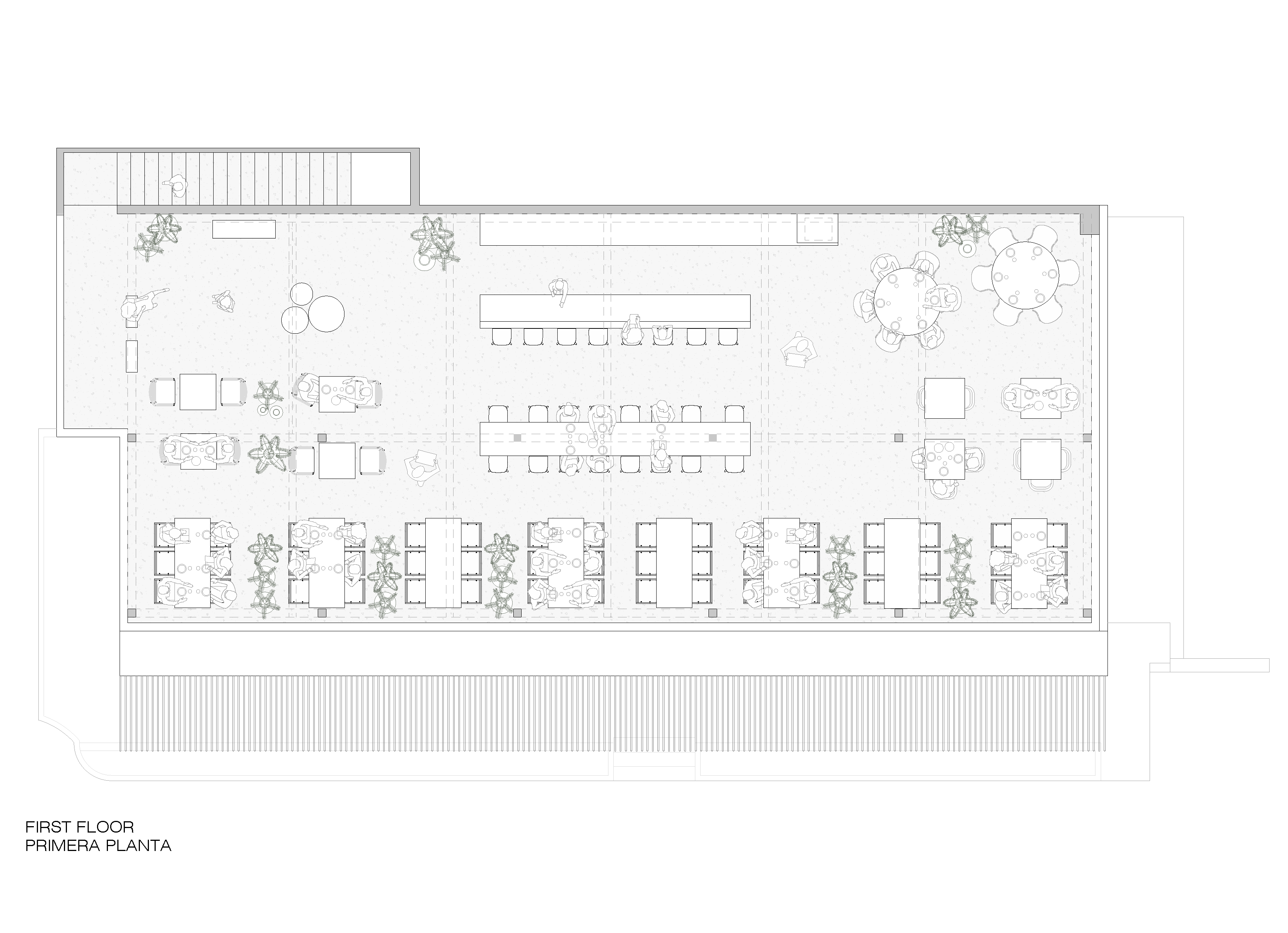
We know people is always posting pictures from the swings we placed in the upper floor, facing the sunset. But I would say our most iconic design here was completing the volume of the building by hanging lots of ropes above the ground floor terrace. The third remarkable spot can be the area of the toilets and bar, which is separated from the rest in of the ground floor by two big arcs and is fully coated with terracota lattices
© Destudio
What was the greatest design challenge you faced during the project, and how did you navigate it?
In these summer restaurants you always want to seat outdoor, then we have to manage how to maximize seating people in the terraces and have all the servants spaces (kitchen, toilets, etc) indoor. That had some difficulties in how you get food from ground floor to the first open floor. But also in creating a big bench all over the ground floor terrace, so more people can be seated, and you leave space enough to attend them
© Destudio
How did the context of your project — environmental, social or cultural — influence your design?
It is a 100% influence. You can’t work in a place like Formentera as you would made it at any other place. I mean, there are global cities that we are happy to live in where you could design similar spaces. But Formentera is definitely not a place like this: an island that is visited by thousands of people to meet nature again… you can’t use very industrialized materials here, you must respect the traditional works you see all over around.
© Destudio
© Destudio
What drove the selection of materials used in the project?
Well, this is already replied above. Wooden finishes must be real wood here, etc. Keep in mind that Ritmo is visited by scantily clad people, so they are constantly touching every material you have introduced in the project… even some of them can walk barefoot on our mud flooring!
What is your favorite detail in the project and why?
Mud flooring designs and wicker ceiling were very designed, but I would say again that our favorite spot is the hanging ropes.
© Destudio
How important was sustainability as a design criteria as you worked on this project?
This was again very important in this project. Natural materials were used here not only in the sense of finishes but also trying to get nearby products and suppliers, so we can keep the island as it is now, as much as we can
In what ways did you collaborate with others, and how did that add value to the project?
In restaurants there is a special input by the graphic designers. They go along with interior design and everything must reflect the same story. In Ritmo we had frequent workshops with them, so you can go there and have the same atmosphere in the menu you read and the table you seat around.
© Destudio
Were any parts of the project dramatically altered from conception to construction, and if so, why?
Not many. I remember the pergola in the first floor had to be changed on site due to Formentera regulations, but that was not a dramatic change
How have your clients responded to the finished project?
They are very happy, not only for the design must also for timing. Have in mind that these restaurants are open just for 100 days a year. When the client came to us we were just 5 months before summer so making the project and the construction in a remote island where supplies take so long to arrive was one of our main goals. Finally, they open last June and could have a great summer season.
What key lesson did you learn in the process of conceiving the project?
That you have to involve your client’s workers (chef and mettre) as much as him. They must take important and quick decisions that your client cannot
© Destudio
How do you believe this project represents you or your firm as a whole?
It is not our “standard” project because of the location, so I would say it is not very representative from ours, even if we’re so happy with the whole project and the result.
How do you imagine this project influencing your work in the future?
It has. Some other clients in the Balearic islands have come due to they visited Ritmo.

Credits / Team Members
Marta Segura, Nacho Díaz
Consultants: Estudio Room
Products / Materials
Arkos light for lighting, Maora Ceramics for flooring and coatings, Naturtex for the wicker panels, Point1920, Pedrali, Andreu World for furniture.
Outdoor furniture of Point 1920.
For more on Ritmo Formentera, please visit the in-depth project page on Architizer.
Ritmo Formentera
