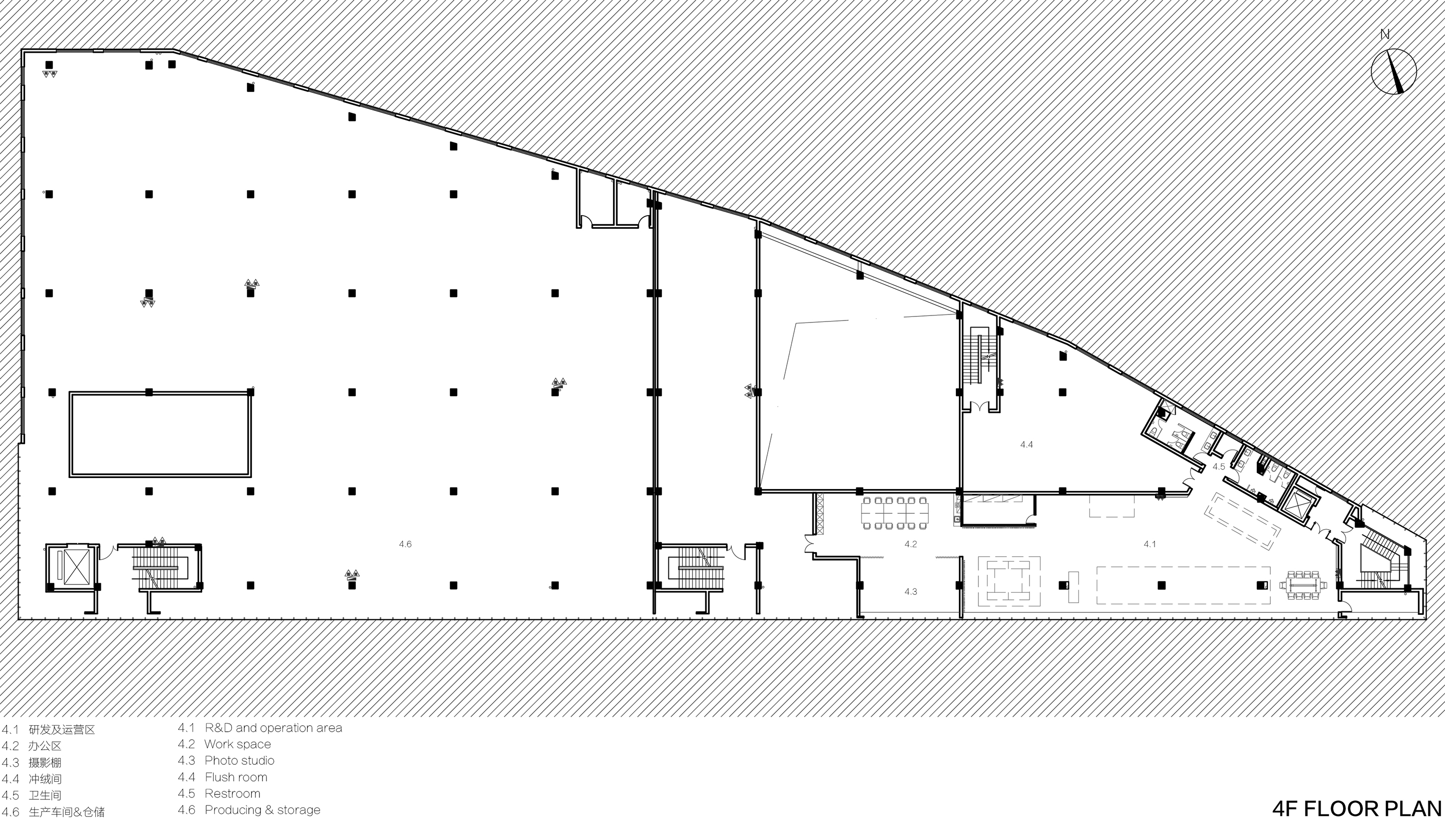
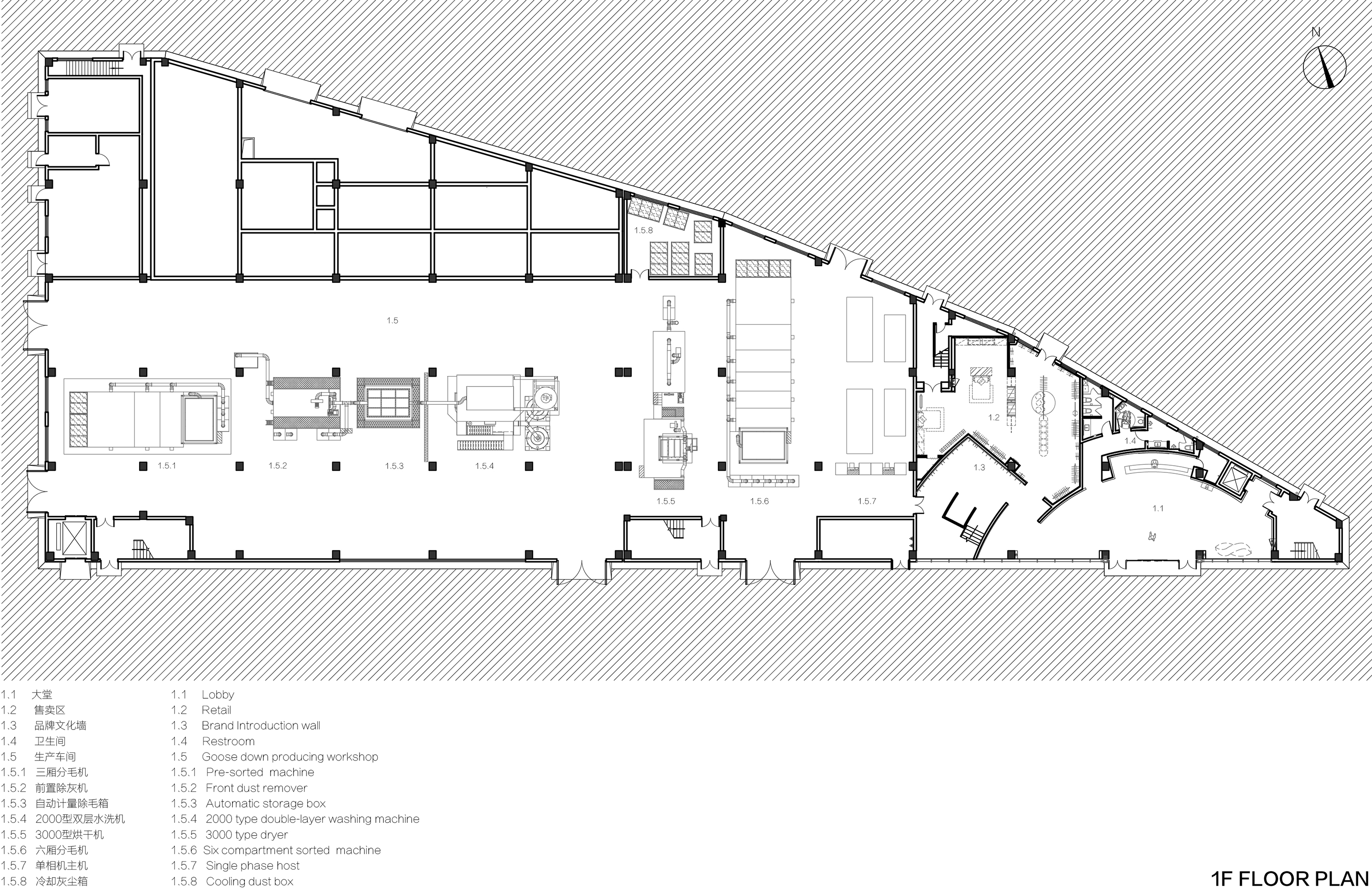
BSH headquarters is located in Shaoxing city, it’s designed by the Greater Dog Architects. The main building called é é é that emerged in the city by its unique quality. é é é is a comprehensive functional building integrating retail space, office, restaurants,R&D and production, and sightseeing factory. BSH focuses on bedding products which is from high quality goose down.
Architizer chatted with Jin Xin and Zhihong Hu from Greater Dog Architects to learn more about this project.
Architizer: Please summarize the project brief and creative vision behind your project.
Jin Xin and Zhihong Hu: The needs of different indoor functions are closely related to how the building grows. The architect did not separate “interior design” from “architectural design”. In the design process, we integrate and layout the interior space functions before designing the building. For instance, the combination of the working route of workers in the factory area and other indoor functions, the moving line of machines in which area of the building can be better reflected, the role of the skylight in the atrium, and so forth. This series of design solutions are based on the integration of architecture and interior as one. Therefore, what we enter is not only a simple architectural framework, but also the satisfaction of different indoor space needs.
© Greater Dog Architects
© Greater Dog Architects
What inspired the initial concept for your design?
「Seeing gently」
The white and light texture of the goose down inspired the architect, and the architecture may try to find the state of floating in the air. Therefore, looking for a poetic structure has become a very important starting point of the building.
© Greater Dog Architects
What do you believe is the most unique or ‘standout’ component of the project?
Curved aluminum plate has become the main feature of architecture, both emphasized the freedom of white linear form, and presented the potential rhythm by the curve. It seems simple to use the dynamic cutting method, but it shows the infinite possible rhythm of building skin.
© Greater Dog Architects
What was the greatest design challenge you faced during the project, and how did you navigate it?
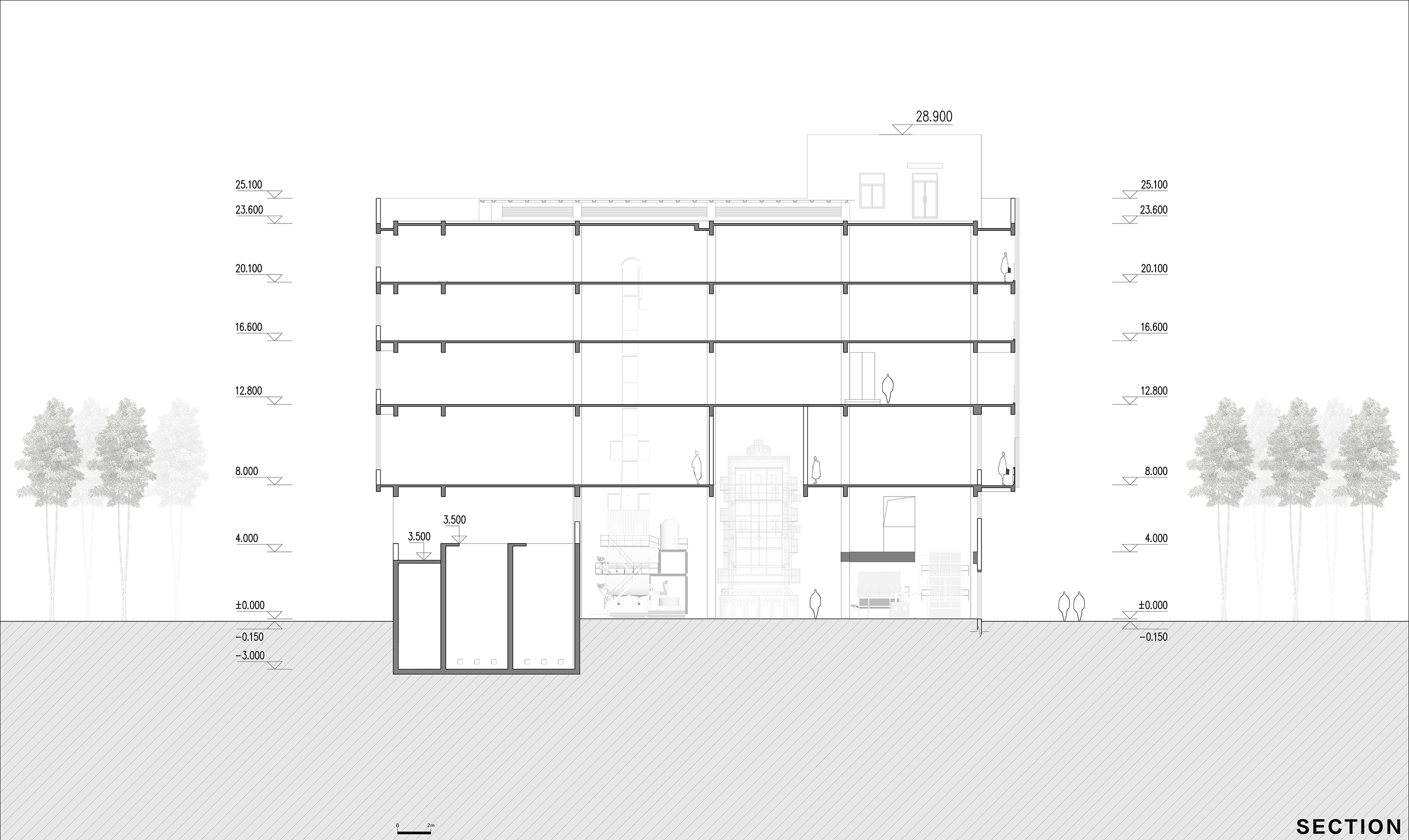
The original building site is triangular and sharp, it is completely opposite to the initial concept of “seeing gently”.As architects, we need to respect the site and know the limitations of the site, then find clever solutions.
Greater Dog Architects try to break this angular site and designed it as two parts: suspended and solid.Low area as solid concrete, forming a thick and stable building base, and the high area is curtain wall system with gradient translucent glass and white curved aluminum plate.The concrete wall is designed to be retreated, which makes the white curtain wall more transparent and suspended in the air.
© Greater Dog Architects
How did the context of your project — environmental, social or cultural — influence your design?
It is important for a new building to form a dialogue with the current environment, which is also a point of concern to the Greater Dog Architects. When we applied glass into this building, the reflection is a good medium forms dialogue with natural light: during the day, while the glass reflects the outline of the surrounding trees, buildings and rivers, the curved aluminum plate changes constantly with the projection of sunlight, forming a rich rhythm of light and shadow on the facade, rather than being in a static and isolated combination.
© Greater Dog Architects
How have your clients responded to the finished project?
The owners are very satisfied with this building, which brings poetry to the whole industrial area.
© Greater Dog Architects
What key lesson did you learn in the process of conceiving the project?
Finding touching details often brings different surprises to the project
© Greater Dog Architects
© Greater Dog Architects
For more on BSH Headquarters, please visit the in-depth project page on Architizer.
BSH Headquarters- Greater Dog Architects
