CasaTresAguas – An architects dream to build your own house, comes with a lot of unforeseen challenges, such as millions of ideas one wants to make reality, the restricted budget, the small plot of land and probably the family which could become your worst client ever. Andreas Croitoru and his business partner Jean Sebastien Houyoux decided that instead of going through all these challenges, they better build a beach house as a weekend house for both their families to use alternately, but most of all to be able to build based on their idea of how beach houses should be built in this environment. Given over 15 years of experience as exclusive hotel and residence designers, Andreas and Jean Sebastien understand that a beach house should be all about the connection to nature, the natural state of the elements and all-around comfort for every guest at all time.
Architizer chatted with Andreas Croitoru, architect at Design H&C, to learn more about this project.
Architizer: What inspired the initial concept for your design?
Andreas Croitoru: Our experience as designers for luxury hotel brands such as Aman, GHM, One&Only, Cheval Blanc and many others, brought us to the understanding that nurturing our ancient human desire to connect and return to nature is one of the most important responsibilities we do have as designers. The right proportions and volumes, as well as a seamless connection to the natural environment are the quint essence for our wellbeing. Adding a high level of comfort is essential in order to create a space that activates all senses, inducing to relaxation and a more profound connection to ourselves and our environment.
© designH&C
What do you believe is the most unique or ‘standout’ component of the project?
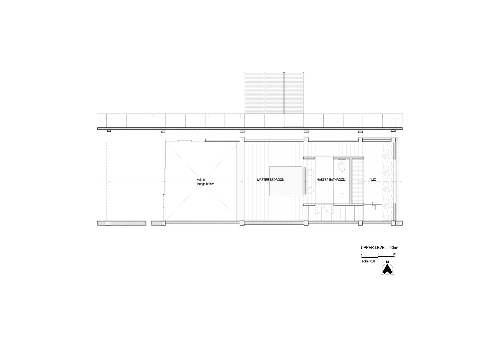
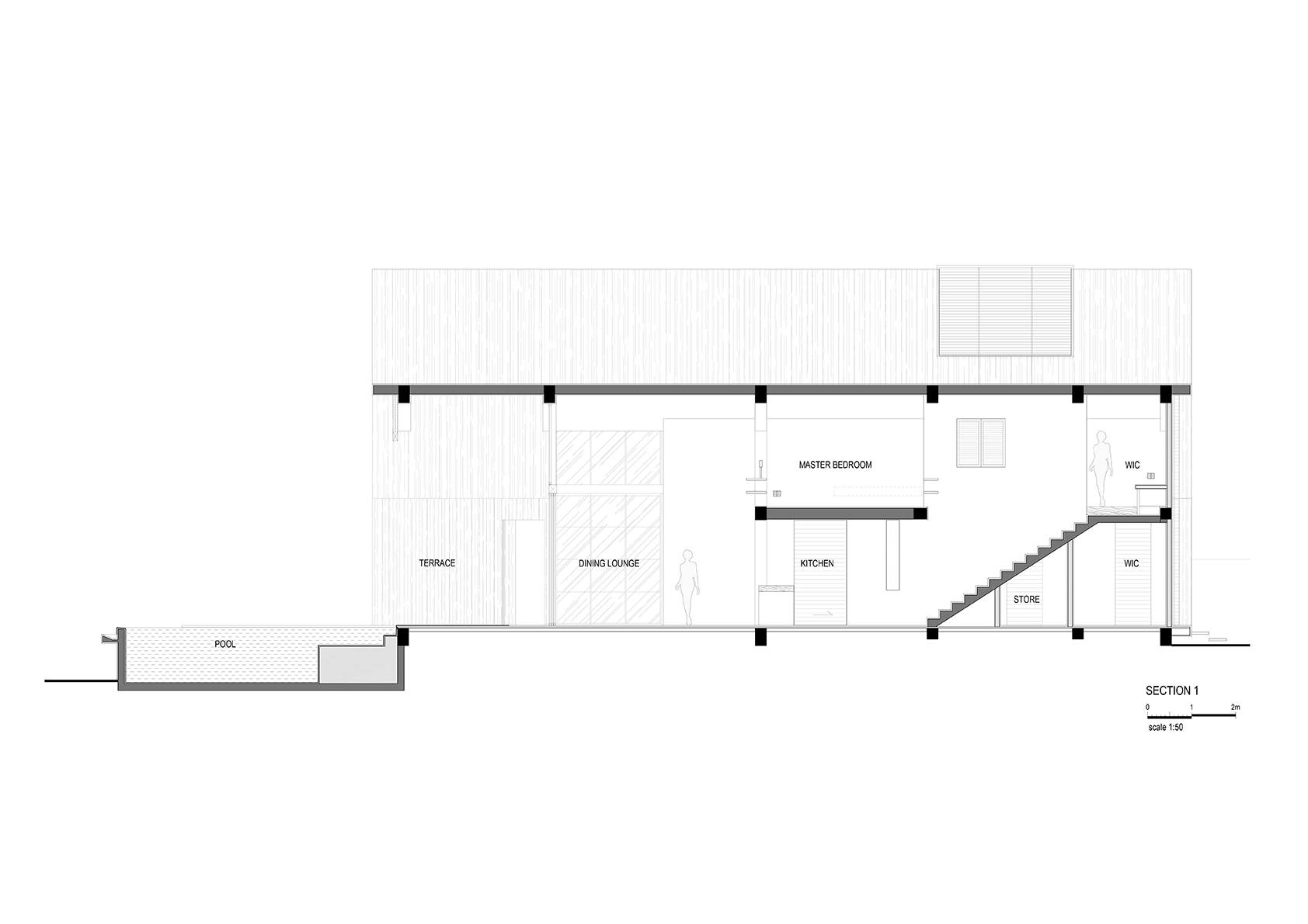
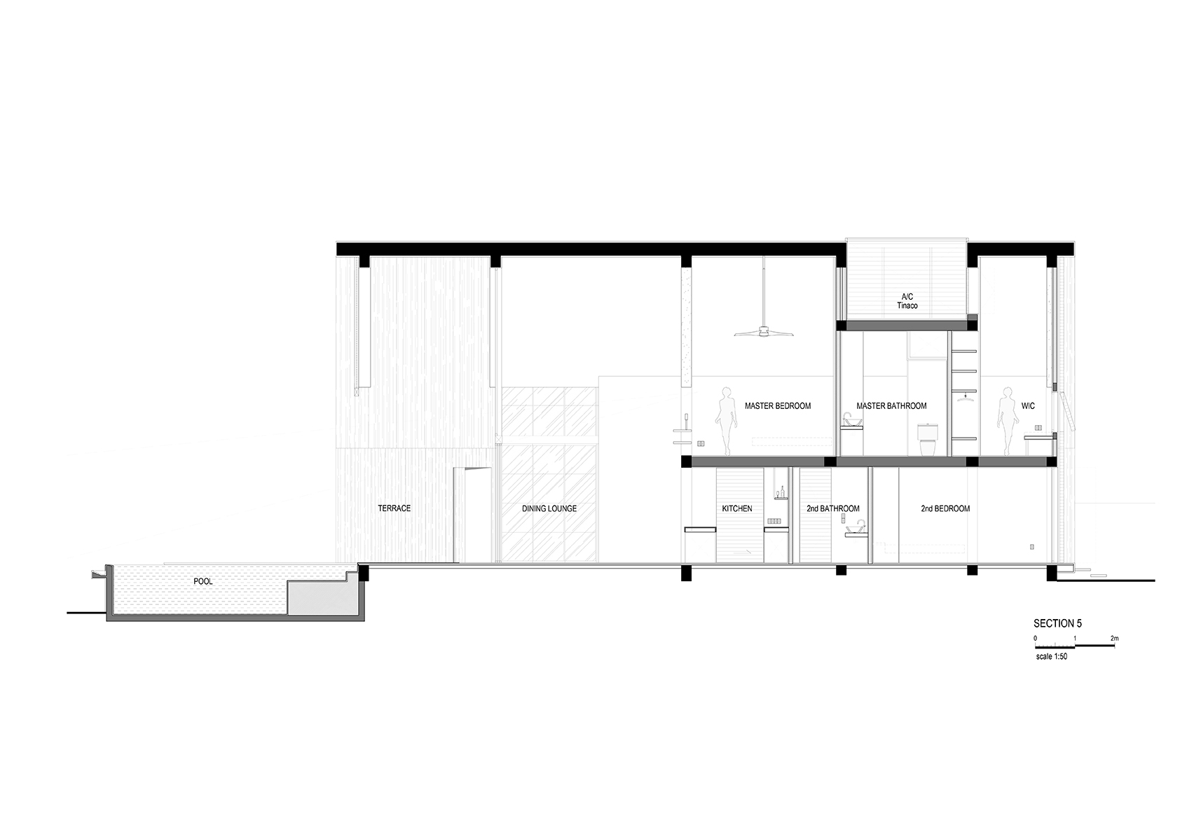
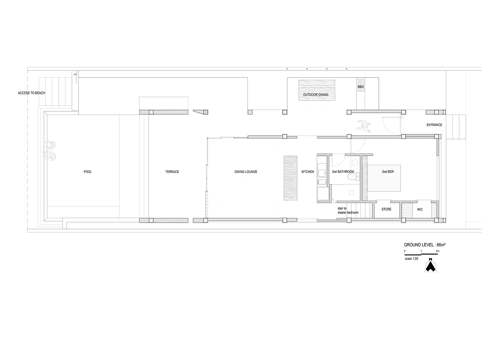
The theme of a seamless transition between indoor and outdoor, as well as comfort and relaxation within nature has been followed rigorously throughout all details of the house, from the double height, large multi paned windows blending the living room with the wraparound terrace, leading towards the pool and beachfront, to the views cleverly chosen from the master bedroom overlooking the ocean and the constant contact with nature at all time.
© designH&C
What was the greatest design challenge you faced during the project, and how did you navigate it?
Although in a fantastic location, inside the fisher village of Celestun, Mexico, the plot was relatively small and narrow with 10m beach front only. To consequently follow our concept of seamless connection to the exterior we needed to apply all our design tricks. However, the result has been amazing and we received great feedback from all our guest.
© designH&C
How did the context of your project — environmental, social or cultural — influence your design?
The project is located in a protected biosphere, therefore our main goal was to serve as a good example of a responsible design practice in this area, but also to provide the opportunity to others to experience a better and healthier lifestyle connected to nature and respectful to its environment.
© designH&C
What drove the selection of materials used in the project?
Although the look resembles the traditional palapas in the region, we opted for using durable materials, all locally sourced and with low carbon footprint. Everything has been designed to the needs of the guest and has been built with the help of local contractors, mostly from the village itself and the city of Merida 100km away.
© designH&C
© designH&C
What is your favorite detail in the project and why?
It is difficult to pick just one detail, since they are all connected and serving the same purpose of comfort and connection to the environment. The scratched concrete on roof and façade is something we do still enjoy very much, since it looks so natural and gives a softness to the house itself. But also the arched wall lights are an element that gives so much to the house not only as lighting fixtures, but also as design elements, with their repetition and presence in the space day and night.
© designH&C
How important was sustainability as a design criteria as you worked on this project?
In our practice sustainability, longevity and natural are not just words, but deeply rooted in our philosophy.
In what ways did you collaborate with others, and how did that add value to the project?
To have the chance to be your own client opens a variety of opportunities in terms of experiments one can finally put in practice and chose your collaborators and workmanship. The decision to work with local contractors gave us the chance to learn a lot about traditional techniques and share our views and knowledge with them. The success of this design is based on this collaboration that put together the traditional and ancestral workmanship with our international design experience.
© designH&C
Were any parts of the project dramatically altered from conception to construction, and if so, why?
Not at all. The design has been followed through during all phases of construction and we are glad to have worked with creative collaborators, who have been able to find incredible solutions in benefit to the design.
© designH&C
How have your clients responded to the finished project?
Since we are our own clients, we are obviously very happy with the result. However, since we are very much interested to share our life style with likeminded people around the world, we are also renting out the house and until now we have received excellent feedback throughout.
© designH&C
What key lesson did you learn in the process of conceiving the project?
Working with local craftsmanship forced us to understand that time is relative and needed to switch gears from our “time is money” working philosophy to a more relaxed, detail-oriented attitude that cannot be measured in time. This experience really made us enjoying the process and its result.
How do you believe this project represents you or your firm as a whole?
This project has been envisioned as an example of good design practice and lifestyle. One could seven ay is our manifesto for all the values we are standing for.
© designH&C
How do you imagine this project influencing your work in the future?
We have had an exceptional feedback, which assures us that we are not alone in our search for a better environment and living and gives us a tremendous amount of energy to pursue this path for the future.
Team Members
Jean Sebastien Houyoux – a great designer and friend
For more on CasaTresAguas, please visit the in-depth project page on Architizer.
CasaTresAguas
