After 50 years of being finished our client requests to adapt the existing guest house to actual needs. Located in Panama´s Central Mountain range at 1,000 meters over sea level, the property enjoys one of the mildest climates temperature of the country. This guest house, which its structure was erected with some of the Panama Railway ties (1850), its a single-story house closed to the contexts and the views of the mountain range.
The intervention on the existing house is based primarily on the removal of the roof to create a second-story where we propose a bedroom, a bathroom and an outdoor terrace that allows the rest and recreation of the visitors, and became the new meeting point of the complex.
© jia
© jia
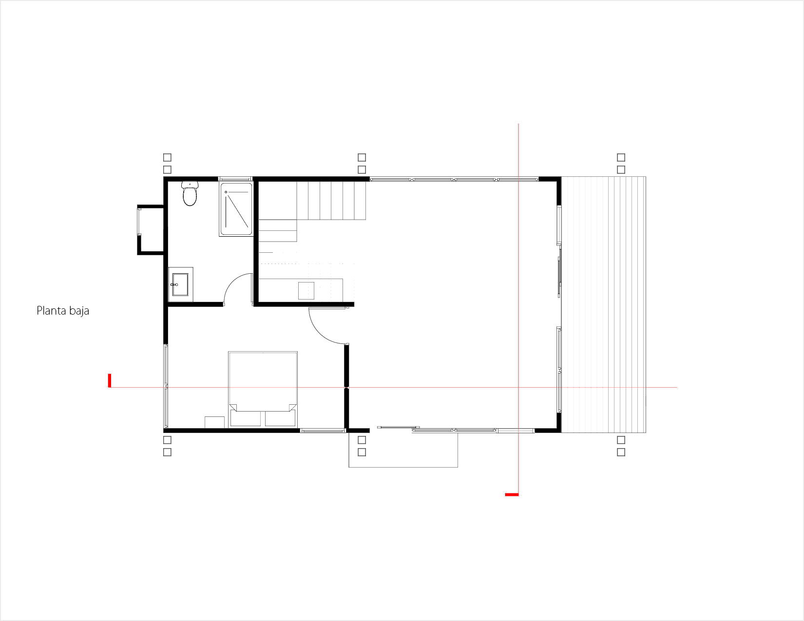
The first story remain with the existing uses -bedroom, bathroom, kitchenette and balcony- but we expand the living room and change the floor tiles, doors and windows.Some materials as wood and clay tiles have been recycle from the existing house, and beams steel for the main structure from the demolition of an old factory.The immediate environment which is entirely natural, maintains close relationship with the project, living with it as an element of the landscape.
© jia
© jia
An interior-exterior relationship is established in which the visitors cohabits with natural light and maintain eye contact with the context. By this we intend to create an architecture that blends with the nature..
© Isturain+Sam
© jia
Mirasol
