A strikingly elegant development of apartments designed to redefine the idea of luxury within an exclusive neighborhood of central Moscow.
The main entrance to the building is a grand column-free, double-height foyer space with inviting splayed walls which open to embrace the full extent of the site. The central focus to the entrance and building’s character is the introduction of a large visual screen.
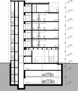
A commissioned work of contemporary sculpture that references the mineral Malachite and allows for dappled natural daylight to permeate into the lobby. The diagonal walls of the entrance along with the core location at the rear of the building define the apartment arrangement on each floor and offers each of the 15 apartments over 7 floors front corner views.
Unseen from street level, the penthouse is setback for privacy. The expansive living area opens to a large terrace the full width of the site.A concise palate of Travertine, bronze and fair faced concrete form the basis of the finishes and reinforces the elegant expression of this iconic building..
Kursovoy Residential Development
