The Lilongwe Centre for Agricultural Transformation (CAT) is an ambitious initiative that aims to establish its first pilot research and development facility on the NRC Campus (University of Agriculture and Natural Resources), in Lilongwe – Malawi. From the beginning, there was a desire to create a building with a strong architectural identity that would become the image of its program: an anchor institution in the agriculture technology (ag-tech) innovation ecosystem in Malawi. Beyond this, the design challenge was to create a work that responds to the logic of the program, its location and climate.
Architizer chatted with Luk Peeters, Chief Technical Officer at ORG Permanent Modernity, to learn more about this project.
Architizer: What inspired the initial concept for your design?
Luk Peeters: The initial concept of the building was based on the main ideas of openness, flexibility, and sustainability. The goal is to create a sustainable center that demonstrates new technologies as well as an attractive educational environment.
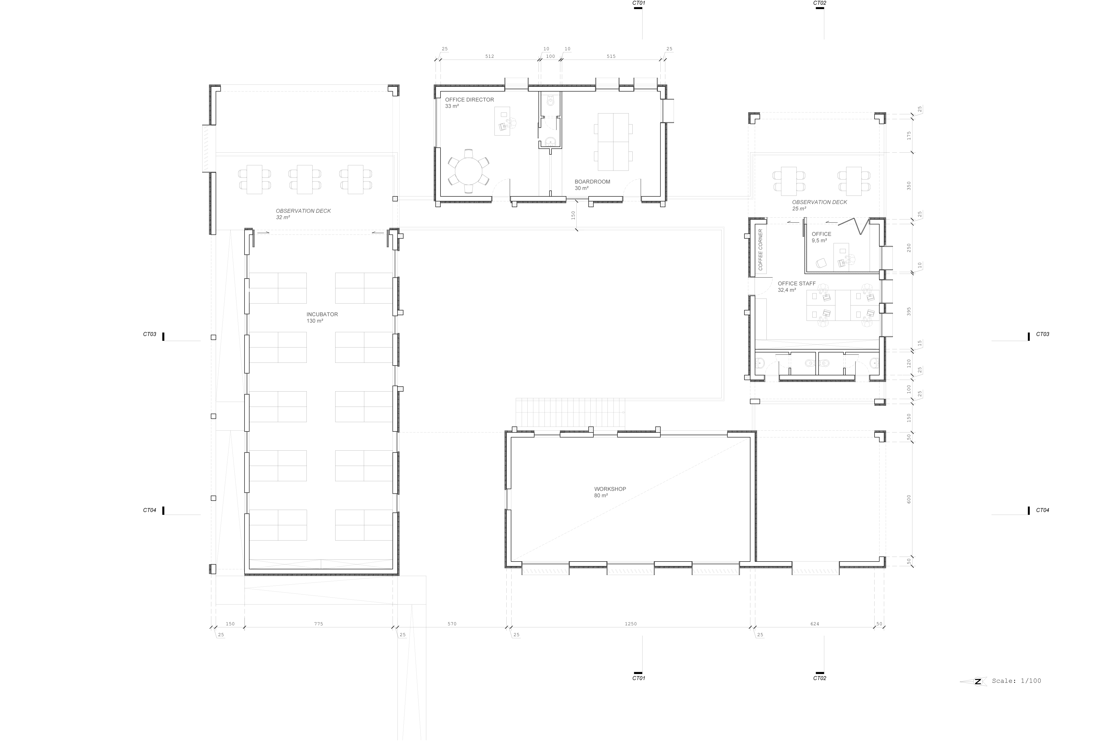
In this sense, the building was designed around the idea of stimulating social interactions between users and to encourage active participation. To do so, we have organized the building as 4 different entities wrapped around a flexible central space that acts as the heart of program where people can meet, exchange, teach, learn…
The CAT building also aims to act as a connector: located at the interface between the academic campus of the NRC and the surrounding farms, its position makes it easily accessible to a variety of actors. Main entrances welcome people to enter the building both from the surrounding farms/villages and from the Campus.
© ORG Permanent Modernity
What do you believe is the most unique or ‘standout’ component of the project?
The iconic shaped roofs of the building are one of the most unique components of the project and make the building stand out as a landmark that echoes the natural landscape of the Lilongwe valley and its isolated mountains scattered around the valley. Copper cladding was used as one continuous finishing material, uniting both the façade and the roofs, and giving a welcoming and monolithic impression.
On each of the roofs there is a mounted roof-over clerestory that helps the daylight comfort as well and enhancing the stack ventilation process.
© ORG Permanent Modernity
What was the greatest design challenge you faced during the project, and how did you navigate it?
The roof’s design is one of the main reflection points of the project and key element of the project’s architectural identity.
The project is covered by five roofs of various shapes, its irregular structure was a great challenge that we tackled with our local collaborators and structural engineers in Malawi through design sessions and workshops.
Furthermore, we knew that the roof is the most critical element of the thermal envelope in a climate like Lilongwe due to the strong solar radiation. It was important that the roof’s design was done in a way that ensures thermal comfort and supports active cooling system such as stack ventilation flows.
© ORG Permanent Modernity
How did the context of your project — environmental, social or cultural — influence your design?
Two elements of the site’s context were key to the design process:
The first element was the building’s location on the site. Because the project was aimed to be an open and inviting building, its positioning was carefully deliberated so that it would act as the interface between the campus and the surrounding villages to naturally become a hub connecting people from different background to agricultural innovation and knowledge.
The second point was to establish a good understanding of the local climate. We started by conducting a detailed climate analysis (humidity, dominant wind, orientation…) of the site to inform our design strategies for a climate responsive architecture.
© ORG Permanent Modernity
What drove the selection of materials used in the project?
Different factors drove the overall selection of materials for this project:
On one hand the materials were carefully chosen according to their thermal mass properties with the input of our climate engineers’ consultants. This was to ensure that the walls and roofs composition have an optimized thermal mass and that we could naturally ensure summer comfort and cooler indoor space during the day.
On the other hand, we wanted to use a single material to wrap the entire building from the walls to the roof and, by doing so give a unified and monolithic aspect to our architecture. A copper finishing multilayered cladding was chosen for this purpose.
© ORG Permanent Modernity
What is your favorite detail in the project and why?
Because of the complexity of the roofline, the gutter became a very intricate and interesting detail to develop during this project. Indeed, because the building is covered by five roofs with five different shapes, the structural complexity of the roof meant we had to come up with a creative solution to carry the loads effectively.
In discussion with our local consultant in Malawi, we worked on a solution where the courtyard roof is supported by an architectonic ring beam acting simultaneously as the main gutter element collecting the rainwater from the roof pitches towards the various downpipes.
© ORG Permanent Modernity
How important was sustainability as a design criteria as you worked on this project?
Sustainability is one of the main design criteria of our project with the ambition set to create a building with a strong passive performance. To do so we worked hand in hand with Climate Engineers (Transsolar) during the design process to create a climate responsive architecture adapted to its local conditions.
In this sense, the ambition is set to maximize passive design strategies such as passive cooling, effective façade shading, or thermal performance and to minimize the use of technical elements such as AC units. In this way the building can be easily maintained in the future and rely on renewable energy such a PV system as its main power source.
© ORG Permanent Modernity
In what ways did you collaborate with others, and how did that add value to the project?
Throughout the design process we have been working in close collaboration with the client and different consultant through different workshops and transdisciplinary design sessions. This process was essential for us to come up with a detailed program and a climate responsive architecture designed around material availabilities and local craftsmanship.
© ORG Permanent Modernity
Team Members
Luk Peeters, Alexander D’Hooghe, Kobi Ruthenberg, Isabelle Matton, Heinrich Altenmueller
Consultants
Transsolar climate Engineering; Imdesigns (Architecture consultant); SRNicholas (Constructor)
Products / Materials
Ondulit– a corrugated multi-layered cladding with a copper finishing. This material was chosen as the main material to clad both the walls and the roofs and unify the different entities of the building as a single whole and give the building its monolithic aspect.
For more on Lilongwe Center for Agricultural Transformation, please visit the in-depth project page on Architizer.
Lilongwe Center for Agricultural Transformation
