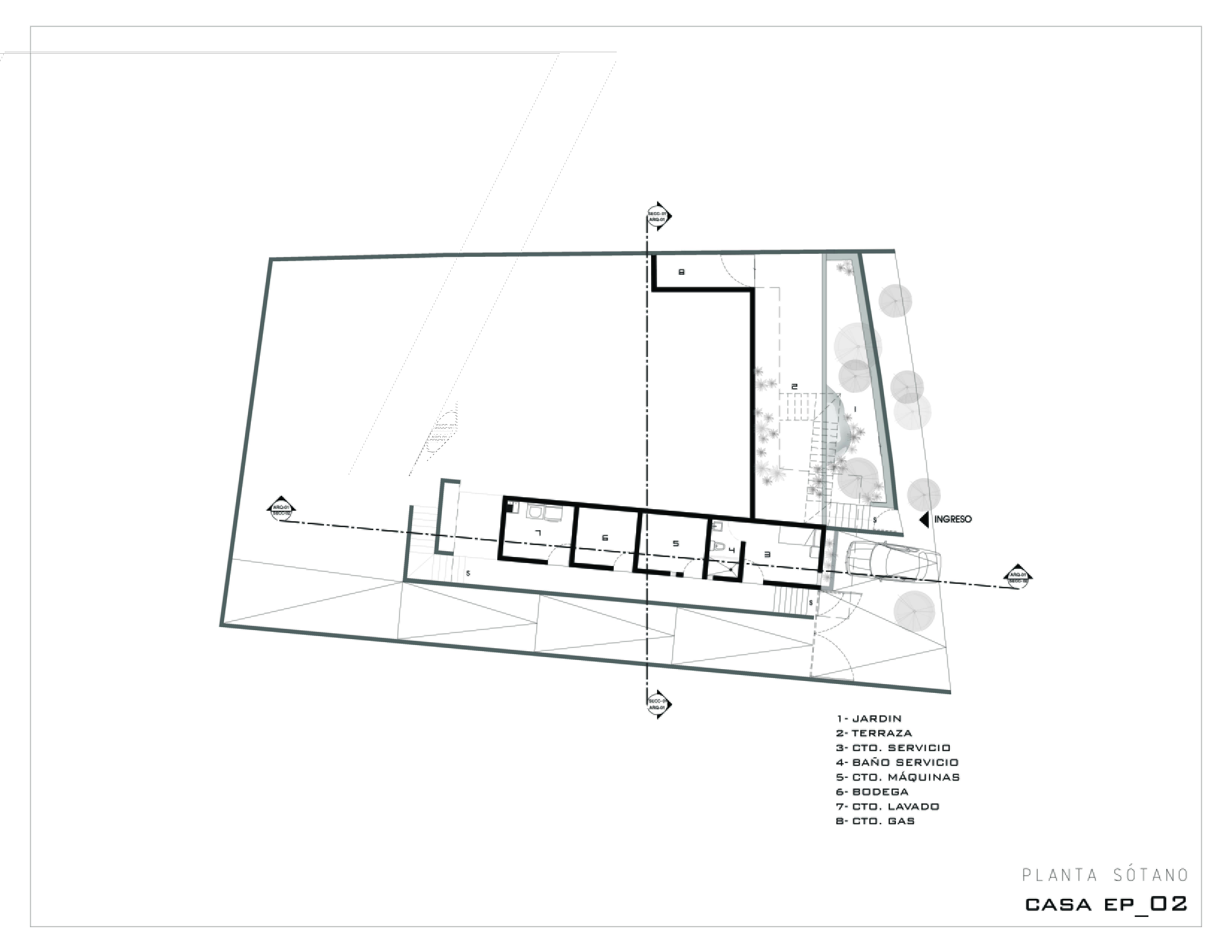
EP 02 is a 340 m2 project with 2 floors, and 3 “boxes” with different proportions, materials and programs inside, stacked and connected with strategic placements and orientations to make a functional, clean, practical and attractive home, taking advantage of its location on one of the highest hills of the city and its natural slopes. It was designed to serve as a permanent home for an elderly couple, with accessibility and sustainability in mind. Embedded in the retaining wall, an obsidian rock reminds us there is no better landscaping than one that respects the environment.
Architizer chatted with Mac Arch Humberto Linares Cardona from Colectivo NDS to learn more about this project.
Architizer: What inspired the initial concept for your design?
Mac Arch Humberto Linares Cardona: At the begging of the creative process, sometimes metaphors are so intimately infused in the essence of its materialization, that even if users are not sure of the threads moved for them to experience it, they manage to appreciate the result intuitively.
In house EP 02 this is so subtle and prevailing, that even without knowing it, you can be watching perfectly synchronized planes landing in a straight line from the balcony, like aligned stars marking the horizon. This was achieved because the main axis of one of the 2 upper modules of the house was traced at the same angle than the landing track of the Guadalajara international airport, approximately 10 km away.
© NDS
© NDS
What do you believe is the most unique or ‘standout’ component of the project?
The ground floor, which contains the service rooms, serves as the foundation as well on which the upper private bedrooms module rests. Taking advantage of its location on one of the highest hills in the city and its natural slopes, the second module rests organically on the ground.
© NDS
© NDS
What was the greatest design challenge you faced during the project, and how did you navigate it?
It was designed to serve as a permanent home for an elderly couple, because of that, on one of its sides, the vehicular access ramp reaches the back of the land, accompanied by a pedestrian ramp, which allows easy access and entrance through the public area, without having to save the height of the entrance, several meters above the 0.0 level
© NDS
How did the context of your project — environmental, social or cultural — influence your design?
Apart from the fact that it was created to adapt to the context of the hill, and connected through the views to the city, when starting the construction, an amazing discovery was made, a fragment of the volcanic history of the site still persists, embedded in the retaining wall, a beautiful obsidian rock looks out to remind us that there is no better landscaping than one that respects the environment and plays with the pre-existence of the land on which it is built.
© NDS
© NDS
What drove the selection of materials used in the project?
The idea behind the materials was to create a clean looking house, hand in hand with its geometry purity, without an overwhelming number of colors and textures, respecting the nobility of the exposed materials and simplicity of contemporary finishes
What is your favorite detail in the project and why?
The appearance of a white box embedded in the face of the mountain, resting majestically watching over the city, odd and at the same time embedded in its context
© NDS
© NDS
How important was sustainability as a design criteria as you worked on this project?
Sustainability is present through the handling of water. A system made up of a biodigester, filters, irrigation system, allows it not to be wasted, but actually be reused or returned to the land, without needing to use public drainage systems.
© NDS
In what ways did you collaborate with others, and how did that add value to the project?
Our collaborators are our soul, we are a collective group of people who’s opinions, input, ideas and hard work help molding the firm’s body of work everyday.
Were any parts of the project dramatically altered from conception to construction, and if so, why?
Landscaping changed, from a conventional first sketch, to a one more connected with the natural environment, flora and exposed rocks from the land, after discovering their beauty
© NDS
How have your clients responded to the finished project?
The clients are happily satisfied with the results, especially because from conception to ending their opinions, comments, ideas and solutions were taken into consideration and respected. It was created to fulfill their family needs with extra details concerning their safety and comfort.
© NDS
How do you believe this project represents you or your firm as a whole?
We seek the optimization of all the resources involved in the design, construction and contexts to achieve a unique functionality in each of them, setting high standards of excellence for functional, unique and strategic spaces, exercising it primarily to satisfy the needs of our clients while respecting the environment.

Is there anything else important you’d like to share about this project?
To create innovative and aesthetic solutions through personalized attention and with exclusive methodologies and designs that guarantee added value to our clients for a better environment and quality of life is our goal.We guarantee control of all aspects in real time: Quantity, quality and investment, eliminating setbacks at each stage of the project.
© NDS
Team Members
MAC Arch. Humberto Linares Cardona – Arch. Erick Joel Ramírez Bautista – Arch. Conchita Covarrubias Lanzagorta – LDI. María Eugenia Ocampo Vázquez – Arch. Alondra Monserrat Valadez
Consultants
PH: Oscar Hernández
Products / Materials
cemex concreto www.cemexmexico.com; porcelanite pisos www.porcelanite.com.mx; castel pisos www.castel.com.mx; arko pisos www.arkodesign.com.mx; rotoplas biodigestor y cisterna www.rotoplas.com; daltile azulejo www.daltile.com.mx; interceramic azulejo www.interceramic.com; tishman luminaria www.tishmanlightinguii.com.mx; tecnolite luminaria www.tecnolite.mx
For more on Ep_02 House, please visit the in-depth project page on Architizer.
Ep_02 House
