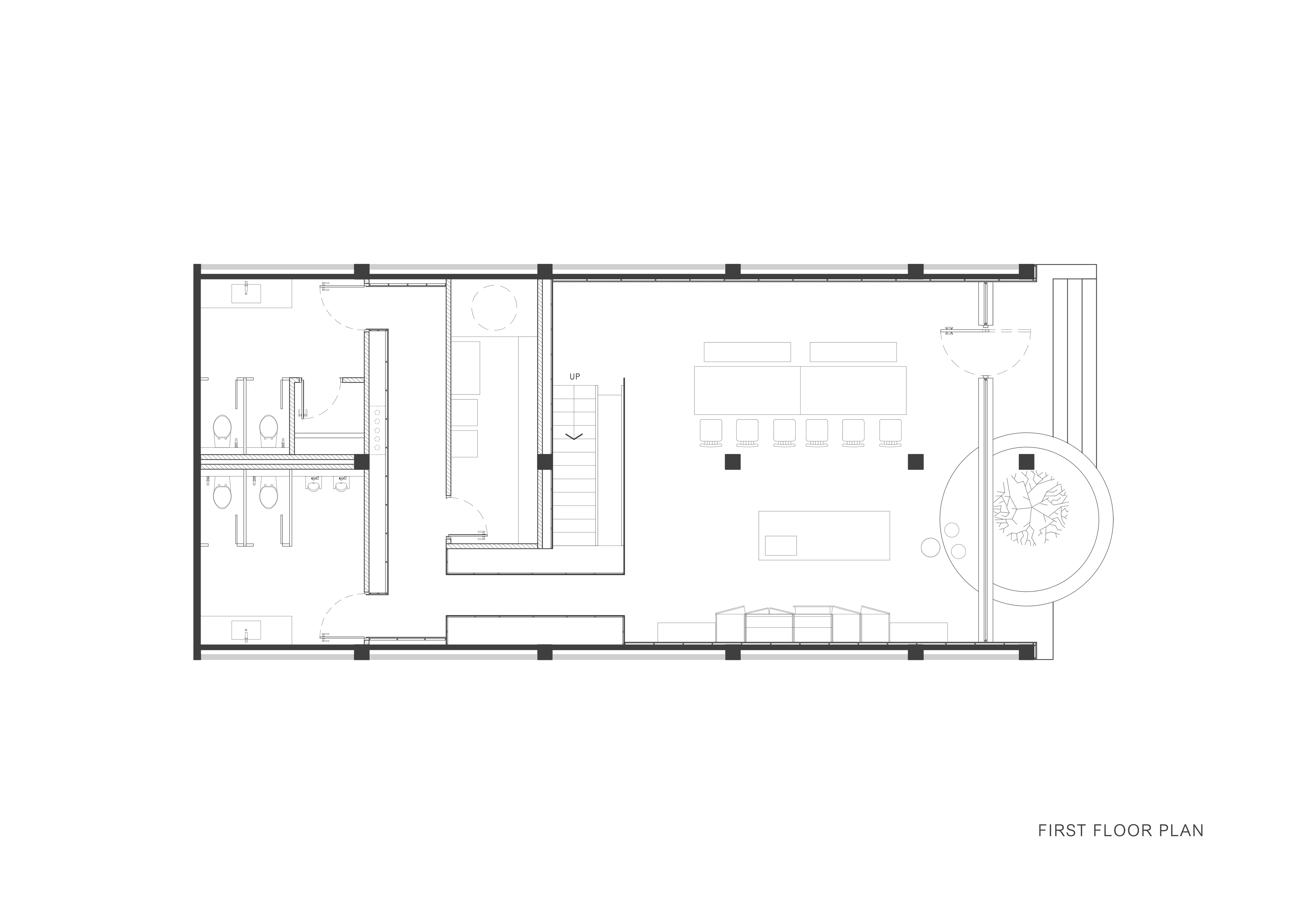
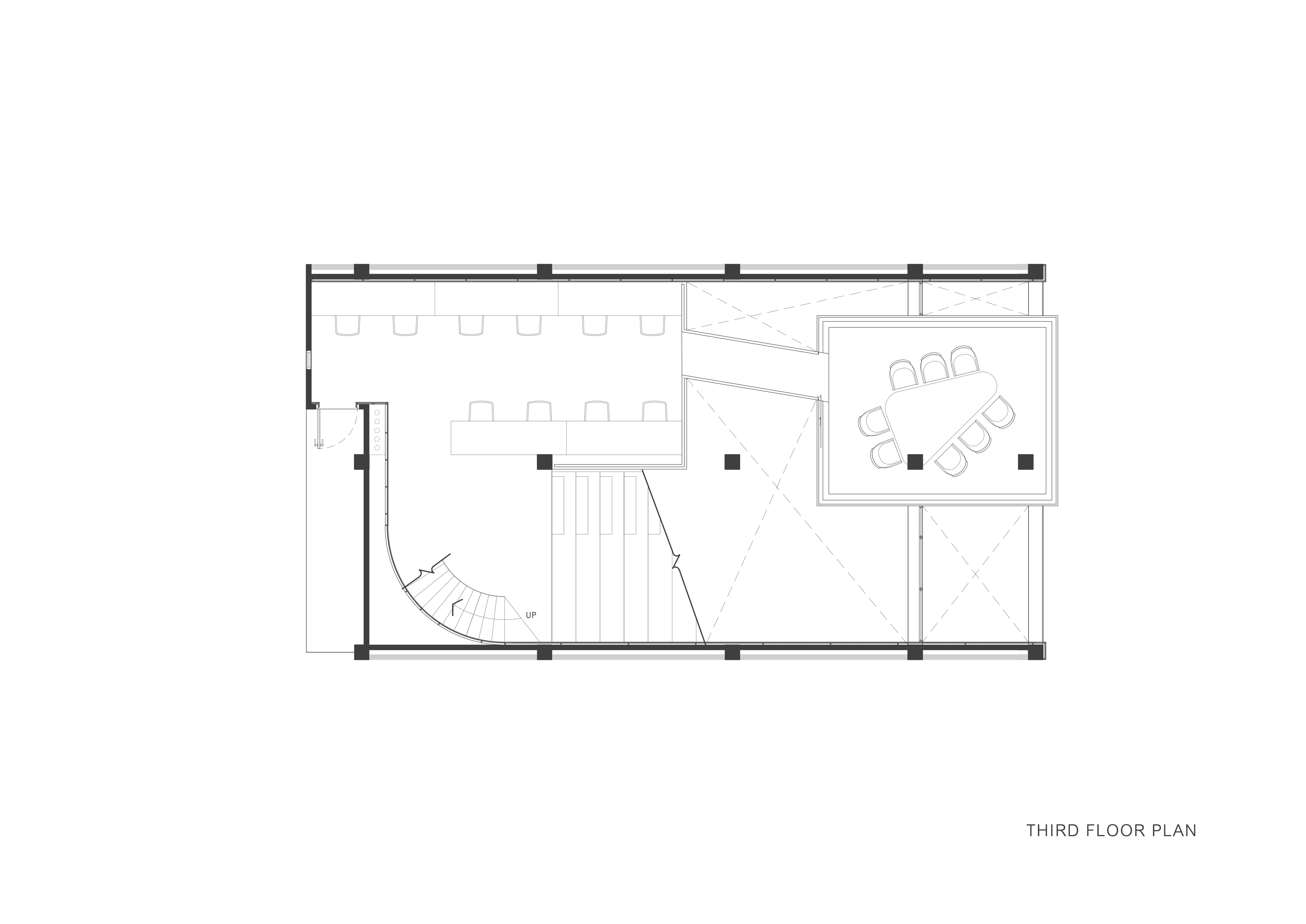
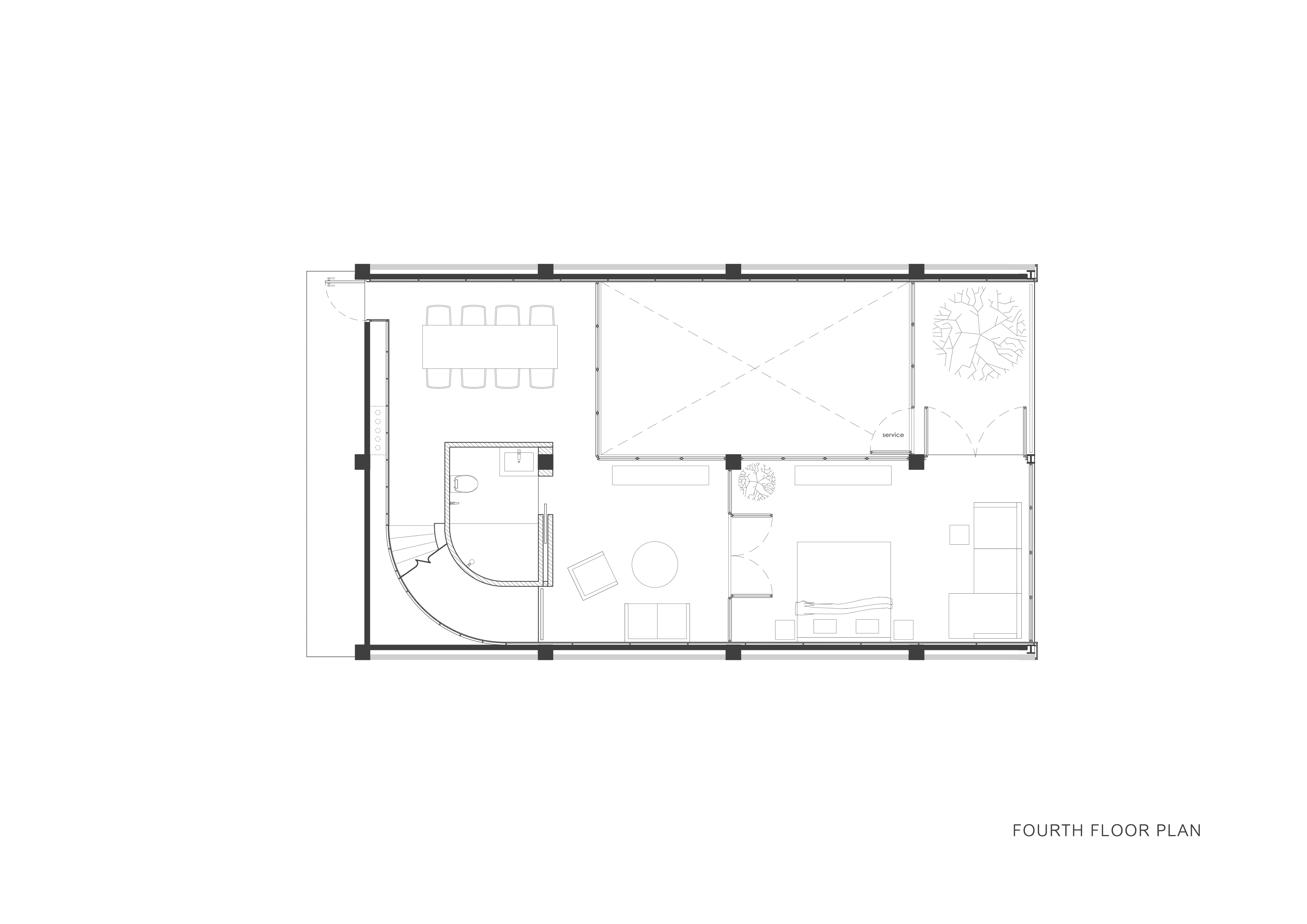
Baksters Office – MUN Architects transforms a 4 story shophouse into a computer vision technology support business office. Located in the middle of the hectic city of Bangkok, Thailand. The typical low ceiling shophouse building has been reprogrammed and refurbished for Baksters.
Architizer chatted with Podjanarit Nimitkul, Project Director at MUN Architects to learn more about this project.
Architizer: Please summarize the project brief and creative vision behind your project.
Podjanarit Nimitkul: I want to create a work environment for Bakster staff that engages them to interact with each other so that they can exchange their creative ideas in a calm and peaceful rigid structure with quality natural light. Various types of rooms and spaces are provided for them to choose for their desired activities. I experiment with what types of space can be achieved from the existing grid structure.
© MUN Architects
What inspired the initial concept for your design?
When I first entered the existing building, I got a strong sense of being enclosed by walls and ceilings due to the low height and narrow space that had been commercially built to be a shophouse. I felt the need to explore beyond these boundaries. There was too much pressure going on here. Physical models were later made for studying. By stripping down all the walls and floor plates, the core structure was revealed. We all see the potential of turning this into a structure of nature. My team and I imitated the space of our favorite hills and caves from our experiences to the project.
© MUN Architects
What do you believe is the most unique or ‘standout’ component of the project?
It would be how natural lights enter different openings and reflect on shapes and textures. The shadows move throughout the day. Each day is different, not a single day is the same at Baksters.
© MUN Architects
© MUN Architects
What was the greatest design challenge you faced during the project, and how did you navigate it?
We have all the fancy ideas during designing process but when taking the existing structural conditions into account, many had to be eliminated. Getting all the trees and placing a glass meeting room on an old unreliable structure was truly a challenge. Extra supports had been introduced.
© MUN Architects
© MUN Architects
How did the context of your project — environmental, social or cultural — influence your design?
The project started when the pandemic just hit so the neighborhood was and still is very quiet even it is located next to a private university. When the situation is back to normal, I wish the college students to use the trees that we placed in front of the building as a waiting area for a mini restaurant next to our building. The trees from the building facade gives a visual harmony to the alley.
© MUN Architects
What drove the selection of materials used in the project?
We always love how buildings change and evolve through time. Also, we need to respect the whole neighborhood. By applying wood elements to the facade those two aspects are achieved. For the interior, we left the existing concrete structure almost untouched. We want to be able to differentiate what is old and what is new.
© MUN Architects
What is your favorite detail in the project and why?
I could not pick a single detail as my most favorite. I enjoy seeing all the intentional gaps, overlapping, and joints of materials interacting with each other as a whole.
How important was sustainability as a design criteria as you worked on this project?
Sustainability had been taken into account in many stages of the project. We try to limit the use of artificial light by involving natural light as a main role of the design. Also using materials that need zero maintenance as much as we can.
How have your clients responded to the finished project?
They are happy with the results and really enjoy using all the different types of space provided in the building.
© MUN Architects
What key lesson did you learn in the process of conceiving the project?
The key lesson I learned was that open-minded clients and their will to go forward with the creative intention of the design as a team is what makes a project flourish and reach its full potential.
How do you believe this project represents you or your firm as a whole?
As our firm grows, we learn from our experiences in life. It directly reflects on our design. There have been many shifts in our work philosophy and will keep happening. This project fully represents our firm at the moment.
© MUN Architects
© MUN Architects
How do you imagine this project influencing your work in the future?
It will be a baseline for us to go further, to push a little harder in terms of details’ quality and experimentation of space.
Is there anything else important you’d like to share about this project?
The builders are very important. I can not thank them enough for the skill and commitment that they have for the project.
© MUN Architects
Credits / Team Members
Charunwat Mauleekulprairoj, Krissada Tansubsathien, Sasiwan Panya, Ruchira Sawaengphet, Phatcharapong Paiprasert
For more on Baksters Office, please visit the in-depth project page on Architizer.
Baksters Office
