Call for entries: The 14th Architizer A+Awards celebrates architecture's new era of craft. Apply for publication online and in print by submitting your projects before the Final Entry Deadline on January 30th!
Extensions to single-family homes, whether horizontally attached to the side or vertically stacked atop an existing home, open up broad design opportunities not only for reconsidering how a house functions, but also how it relates to its contexts. Extensions can be discreet and carefully aligned with original structures or boldly contemporary, creating a striking contrast that highlights the character of both old and new. They not only extend space but also often extend the life of existing buildings through parallel renovations and upgrades.
The projects featured below embrace this design potential. Each is a study on massing, material expression, spatial reconfigurations and environmental performance to create harmonious or contrasting connections with existing buildings. From inventive adaptations of historic structures to lightweight contemporary insertions, they demonstrate how well-considered extensions can elevate a home’s daily life.
Life Cycle
By Steffen Welsch Architects, Coburg, Australia
Popular Choice Winner, Sustainable Private House, 12th Architizer A+Awards



Steffen Welsch Architects designed a two-story articulated timber rear extension to a traditional single-floor gabled home as “a complex organism inside a compact shell.” Although the volume is compact, the interior functions as a system of carefully arranged spaces, passive climate strategies and flexible zones all working together. The extension adapts a modest weatherboard house to family life and enhances the connection to the neighborhood. Simultaneously, it improves spatial flexibility, environmental performance and functionality.
The new structure accommodates the main communal spaces on the ground floor and the children’s areas above, while the original dwelling accommodates a home office, parents, and facilities. A transitional zone, integrating a small lounge/winter garden overlooking a fishpond, connects old and new. The pond draws cool air toward the house in summer, the winter garden operates as a thermal buffer, and an external timber frame provides shading and filters sunlight. These are some of the environmental strategies that enhance comfort and enrich the architectural language of the overall design.
Bedford Barn Renovation and Addition
By SPG Architects, Bedford, New York
Popular Choice Winner, Residential Adaptive Reuse Project, 13th Architizer A+Awards


The project introduces a 400-square-foot addition to a two-story, 1,150-square-foot (107-square-meter) 19th-century barn designated as a significant structure by the Bedford (NY) Historic Building Preservation Commission. Together, the restored barn and its extension provide space for a generous seating and media area, a twelve-person dining room, and a billiards room on the lower level of the barn.
The addition features a contemporary design through a standing-seam metal roof and bifold glass doors, creating a light-filled room that opens to the natural surroundings. Its roofline aligns with the slope of the historic structure before gently curving upward to enhance the views. The contrast between the barn’s heavy timber frame and cedar shake siding, and the addition’s contemporary design, establishes a clear distinction between what’s historic and what’s new.
The Parchment Works
By Will Gamble Architects, Northamptonshire, United Kingdom
Popular Choice Winner, Private House (M 2,000 – 4,000 sq ft), 11th Architizer A+Awards



A disused cattle shed and adjacent parchment-factory ruins are the framework for the extension project to a Grade 2-listed, double-fronted Victorian house. Instead of converting the cattle shed and demolishing the ruins, the design adopts a “building within a building” approach, consisting of two lightweight structures inserted within the existing masonry shell. By doing this, the design introduces new programmatic functions while celebrating the site’s history. The inserted volumes are built with corten steel, oak, and reclaimed brick. These materials clearly differentiate the new volumes from the original masonry, ensuring that the ruin remains legible as an architectural feature.
This dialogue is maintained in the interior through the juxtaposition of exposed cattle-shed beams, steel structural elements, lime-washed stone walls, and a cast concrete plinth to create a monolithic “baseboard.” A contemporary kitchen, designed as part of the intervention, provides a sharp counterpoint to the irregular stone walls, reinforcing the project’s idea of modern living within a historic setting.
House Extension Bridges Gap Between Past and Present
By HEMAA, Hauts-de-Seine, France




The extension features two volumes of different heights that frame a historic house on two sides while negotiating the site’s steep topography. The use of white architectural concrete, light-colored long brick, and natural-oak window frames lends a contemporary aesthetic that complements the existing house’s architectural character without overwhelming it. After removing the structurally compromised additions, the project retains the intact millstone section of the house and repurposes the salvaged stones to construct a new façade along the revealed load-bearing wall. A glazed passage acting as a threshold addresses the transition between the restored house and the addition. Similarly, the patios and terraces articulate the two structures. On the garden side, expansive glazing opens the living spaces to the landscape, offering generous views and cross-ventilation through the patio. The upper level continues this spatial continuity with a walkway that threads the four bedrooms together, passing through the glazed link above the entrance.
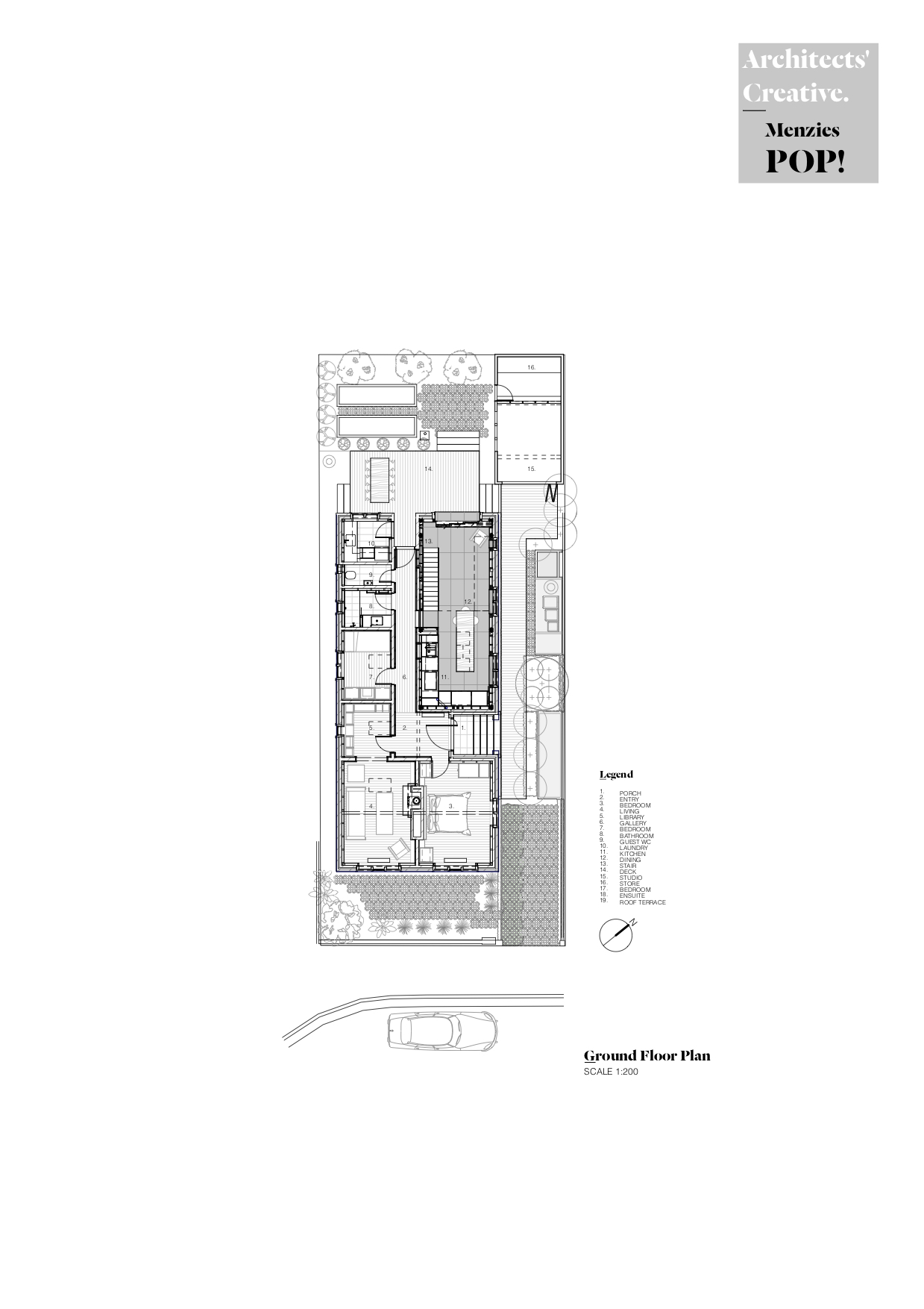
Menzies’ POP
By Architects’ Creative, Christchurch, New Zealand




This vertical addition of a 1940s concrete house increases the home’s usable area and improves functionality without compromising the character of the original structure. The extension also includes a rearrangement of the interior: on the ground level, it creates a bright new kitchen and dining area that opens to the rear back deck; on the upper level, a new bedroom and ensuite open onto a roof deck with views of the surrounding hills.
The extension involved some structural work, including the removal of two walls and a section of the roof. It contrasts with the original concrete structure through marine-grade aluminum cladding that references the existing building’s texture. Inside, the extension features a palette of travertine flooring, larch wall and ceiling cladding, and oak and brass detailing. With environmental performance at the core of the design, the extension is oriented for solar gain and natural ventilation, while new thermally efficient systems complement the existing concrete’s thermal mass.
Wooden Extension to an Existing House
By Atelje Ostan Pavlin, Ljubljana, Slovenia



Atelje Ostan Pavlin designed a compact, elevated timber addition to a two-story house on a suburban street in Ljubljana, where an eclectic mix of single-family homes creates a visually fragmented streetscape. The extension was designed to accommodate two bedrooms and shared spaces for the family’s teenage daughters.
Expanding into the garden was not an option, so the only feasible location for the extension was the narrow strip of land between the house and the street, which the family used for parking. To maintain the parking spot, the modestly sized addition is lifted above the ground, supported by steel columns. Its design, combining solid wood surfaces, vertical wood slats, and generous glazing, gives the extension a light, almost floating appearance. Instead of blending into the surrounding mix of architectural styles, it introduces a clean design language that brings clarity to an otherwise visually busy environment.
Bubble Wrap House
By Amber Book, Blacksburg, Virginia
Popular Choice Winner, Architecture +Climate Change, 8th Architizer A Awards



The gut renovation of a 1930 brick colonial house introduces a translucent volume that serves as a striking rear addition, creating space for a new dining room that opens to the garden. The addition is designed as a high-performance, multi-layered wall system conceived as an insulated “bubble wrap box.” This experimental system, which consists of four UV-stabilized bubble wrap layers and five air chambers between glass panes, is designed to capture solar heat during the day and minimize overnight heat loss.
At the same time, the bubble-wrap wall functions as a daylighting surface rather than a window. Custom-fabricated sliding thermal shutters made from bubble wrap sealed within insulated glazing units complement the wall assembly, while large glass pivot doors set within steel-framed openings provide shaded views from the dining room.
Call for entries: The 14th Architizer A+Awards celebrates architecture's new era of craft. Apply for publication online and in print by submitting your projects before the Final Entry Deadline on January 30th!
Bubble Wrap House
Menzies' POP
Single house in Haut de Seine renovation and extension
The Parchment Works
